Product Introduction
Product Pictures
Product Features
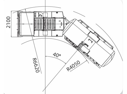
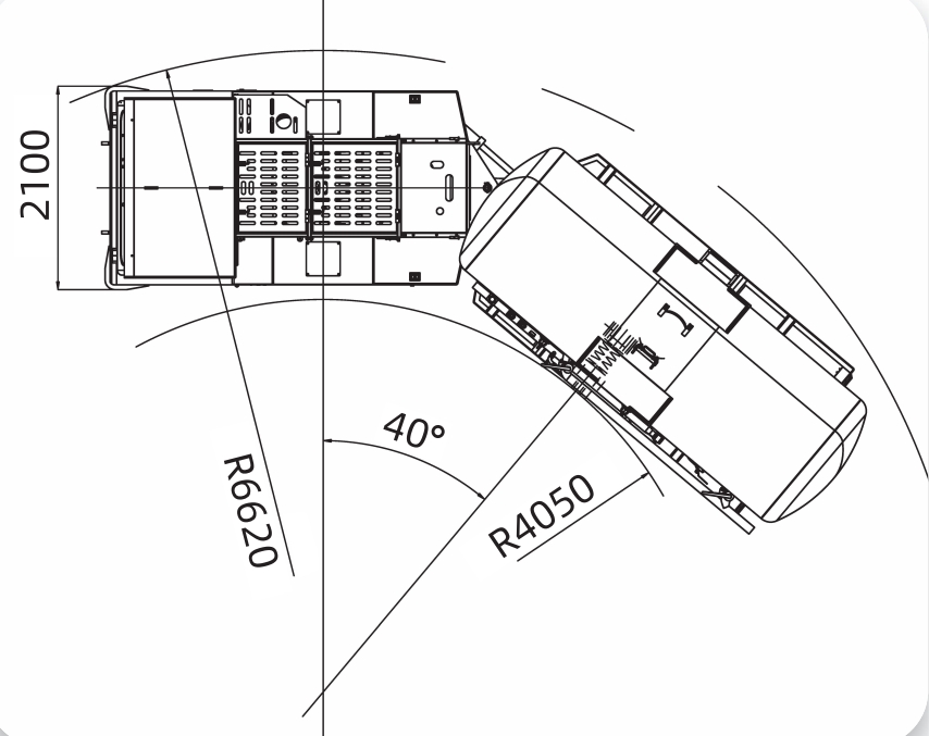
1.It adopts a specially designed articulated fixed structure chassis and cylinder hydraulic steering, four-wheel drive, and a small turning radius.
2.The front frame is equipped with a swing frame, which increases the swing angle of the front and rear bodies in the vertical plane, so that the whole vehicle can land on all wheels on muddy and pothole roads, and more effectively improves the adhesion performance of the wheels and the vehicle's passing ability.
3.It is equipped with a retarder auxiliary braking device, which can effectively reduce or maintain a stable speed when the vehicle goes down a long slope, and reduce or release the load of the service brake.
4.The transmission system adopts a power shift gearbox and front and rear drive axles of well-known domestic and foreign brands that integrate torque converters and gearboxes. It is reliable to use and has strong climbing ability.
5.The braking system adopts a dual-circuit hydraulic braking system, and uses products from the world-renowned Italian brand SAFIM; the working brake is a fully enclosed wet multi-disc hydraulic brake, and the emergency brake and parking brake are hydraulic release spring brakes, which effectively ensure braking safety.
6.The enclosed cab adopts ergonomic design, meets FOPS/ROPS standards, and is equipped with air conditioning, which improves driving comfort and safety.
7.The cab is equipped with an on-board computer system, which can display engine status and protection information, driving speed information and fault information in real time to ensure the safe operation of the vehicle. It is also equipped with a reversing image system to record and store relevant information.
8.The power system adopts the National IV Cummins water-cooled engine, which has low noise and long service life.
9.The main components of the hydraulic system are imported or domestic well-known brands, ensuring the reliability of the hydraulic system.




